作者:嘉誉达建设 / 2021-10-14 12:10:31
医院手术室净化空调装修工程设计施工图(自取新风系统)
内容简介
一、工程概况:
医院手术室净化装修工程,位于新建病房大楼的第一、三、四层,设备机房位于三层与四层之间夹层...
二、冷热源:
1.冷热源由大楼中央空调提供。
2.冷冻供回水温7℃/12℃,采暖供回水温50℃/60℃...
三、净化工程:
1.I级、II级手术室、正负压手术室采用一拖一机组形式,Ⅲ级手术室采用一拖三机组形式。
2.手术室采用顶送能房采两侧下回;洁净走廊及洁净区功能房,采用顶送顶回。
3.新风系统:空调系统全部采用自取新风。
4.加湿采用干蒸汽加湿器,加湿器设在自取新风式净化空调机组...
图纸共16张。
![[内蒙古]医院手术室净化空调装修工程设计施工图(自取新风系统) [内蒙古]医院手术室净化空调装修工程设计施工图(自取新风系统)](http://www.jiayuda.com.cn/uploads/allimg/211014/12091911B-0.jpg?x-oss-process=image/resize,w_760)
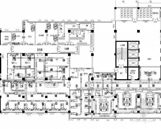
设备层空调风平面图
![[内蒙古]医院手术室净化空调装修工程设计施工图(自取新风系统)-设备层空调基座及留孔平面图 [内蒙古]医院手术室净化空调装修工程设计施工图(自取新风系统)-设备层空调基座及留孔平面图](http://www.jiayuda.com.cn/uploads/allimg/211014/12091a121-4.jpg?x-oss-process=image/resize,w_760)
设备层空调基座及留孔平面图
![[内蒙古]医院手术室净化空调装修工程设计施工图(自取新风系统)-自取新风机组控制原理图 [内蒙古]医院手术室净化空调装修工程设计施工图(自取新风系统)-自取新风机组控制原理图](http://www.jiayuda.com.cn/uploads/allimg/211014/1209193113-6.jpg?x-oss-process=image/resize,w_760)
上一篇: 医用设备带是什么/具有哪些特性和分类
下一篇: 实验室净化工程需要材料有哪些
企业名称:四川嘉誉达建设工程有限公司
联系人:石先生
电 话:13198551112
手 机:13198551112
邮 箱:282863345@qq.com
地 址:成都市金牛区凤凰立交桥内侧